The Observatory Project at the Acoustics and Vibration Research Centre
7-30 August 2025
Public Observation at 2pm, 16th August 2025


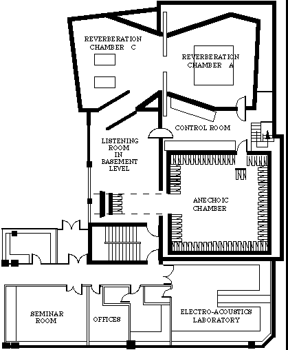
The Acoustics and Vibration Research Centre is comprised of three reverberation chambers and an anechoic chamber used to study acoustics - the field of science asociated with the generation, propagation and efects of sound and vibration. Between the 27th November and the 2nd December 2024, The Observatory Project was based at the centre, working in the space to install the Adaptable Sound Interferometry Equipment A SINE, making towards new sound and video artworks, and conducting research towards our concept of "not-measuring events".

On Saturday, the 30th of November, and Sunday, the 1st of December, 2024, thirty-three participants were invited to visit The Acoustics and Vibration Research Centre for a tour alongside The Observatory Project led by researchers Dr Andrew Hall, Yousif Badri, and Dr George Dodd. Upon arrival, guests were given clipboards and split into two groups so as to minimise the acoustic interference of our bodies in the four chambers visited.

In the anechoic chamber, we experienced the quietest room in Aotearoa – a room suspended on springs and “de-coupled” from the rest of the building. We heard about how the material and shape of the 1m deep foam wedges mounted to the ceiling, walls, and floor (under the suspended astroturf field) are designed to minimise reflected sound. Earlier that week, ground impedance measurements were taken, and the floor of the chamber was set up with layers of MDF, Chux cloths, and astroturf to simulate the acoustic properties of grass.[1] After some time, the first sound event occurred.

The other three chambers visited were reverberation chambers. There are no parallel surfaces in a reverberation chamber, decreasing the interference from standing waves and increasing the potential for sonic reflection. As the large door to Chamber C was closed, the sound of birdsong and light rain outside faded and each small movement made was seemingly amplified as the echo increased. Panels mounted to the walls of Chamber C re-directed these reflections, and large rotating vein diffusers mounted to the ceiling further stir up the sound field. In the reverberation chamber, it can be difficult to isolate where the source of a sound is located.

The wall between chambers A and C was removed making both chambers into one space. The Adaptable Sound Interferometry Equipment (A SINE) was installed in Chamber A, and was the source of sound events that were heard simultaneously across all four chambers. Attached to the walls under tension were panels of CNC cut MDF – “metamaterial” filters that dampened frequencies around 2000 kilohertz.[2] Not-Measurements of the sonic field were taken by the Observatory Project, as sub-base frequencies pressurised the chambers. Numbers were read and recorded: frequency ranges, decibel levels, distances (in mm), and reflections from surfaces. Twelve-sided speakers were suspended in the corners of the chambers. A small door to an unused silent air supply was opened, releasing some of the pressure and a radio affected by the interference of measuring equipment on the radio field was removed.

Not-measuring differs from simply not taking measurements. To make a not-measurement, the action of measuring is performed with an intention to not produce data. Any traces of that not-measurement event act as documentation, reframing the event as an artwork. Not-measuring events interrupt the normal processes of making measurements and observations by focusing on the act of measuring as making.

In Chamber B, located directly below chamber A, a microphone swung in an arc around the space. The microphone was mounted atop a large hydraulic lift, and looking up, you could see the removable floor that is used for experiments in materials and sound-proofing. Here Andrew and Yousif demonstrated a cylindrical metamaterial filter made to respond to a specific frequency range. Wooden boards and bags of foam rested against the walls and floor, in what at first seemed like a simple storage solution but was revealed to be a specifically positioned arrangement of acoustic absorption and diffusion. We heard how the chamber was built to ISO standards in the 1980’s, but that now standards have shifted. In Chamber B they work to change the acoustic quality of the room without building a whole new room.

At the end of the tour, participants were invited to take the first part of this ephemera, and leave their notes and observations behind to be distributed at a later date. Designed to be inserted at the back of the initial ephemera, the following pages feature drawings, notes, and observations made.



With special thanks to Gian Schmid, Andrew Hall, and George Dodd from the Acoustics Testing Laboratory, and to the Audio Foundation for supporting this event.

Link to project ephemera PDF [6.92MB]



[1] Go, Sung Tyack, Michael J. Kingan, Gian Schmid, and Andrew Hall. 'On the Use of Ground-Board Mounted Microphones for Outdoor Noise Measurements'. Journal of Sound and Vibration 584 (August 2024): 118432. https://doi.org/10.1016/jjsv.2024.118432."

[2] Hall, Andrew J, George Dodd, and Emilio P Calius. ‘Multiplying Resonances for Attenuation in Mechanical Metamaterials: Part 1 – Concepts, Initial Validation and Single Layer Structures’. Applied Acoustics 170 (December 2020): 107513. https://doi.org/10.1016/j.apacoust.2020.107513.





© Copyright Ziggy Lever
Not-Measuring ARC, 2025. HD Video, 5:05mins. Screened as part of To Notice is to Remember, Bioart Society members screening Saturday 7th June. SOLU Space (Panimokatu 1, 3rd floor, 00580 Helsinki). Headphones or good subwoofer recommended. The Observatory Project at the Acoustics and Vibration Research Centre, 2024. Installation view. The Observatory Project at the Acoustics and Vibration Research Centre, 2024. Installation view. The Observatory Project at the Acoustics and Vibration Research Centre, 2024. Installation view. The Observatory Project at the Acoustics and Vibration Research Centre, 2024. Installation view. The Observatory Project at the Acoustics and Vibration Research Centre, 2024. Installation view. Acoustics and Vibration Research Centre floor plan (top) The Observatory Project at the Acoustics and Vibration Research Centre, 2024. Installation view. The Observatory Project at the Acoustics and Vibration Research Centre, 2024. Installation view. The Observatory Project at the Acoustics and Vibration Research Centre, 2024. Installation view. The Observatory Project at the Acoustics and Vibration Research Centre, 2024. Installation view. The Observatory Project at the Acoustics and Vibration Research Centre, 2024. Installation view. The Observatory Project at the Acoustics and Vibration Research Centre, 2024. Installation view. The Observatory Project at the Acoustics and Vibration Research Centre, 2024. Installation view. The Observatory Project at the Acoustics and Vibration Research Centre, 2024. Entrance to ARC. Acoustics and Vibration Research Centre floor plan (side)